Property Details
000 Roanoke Drive
Fort Mill
$3,800,000
MLS Number: 4299175
Status: Active
Description
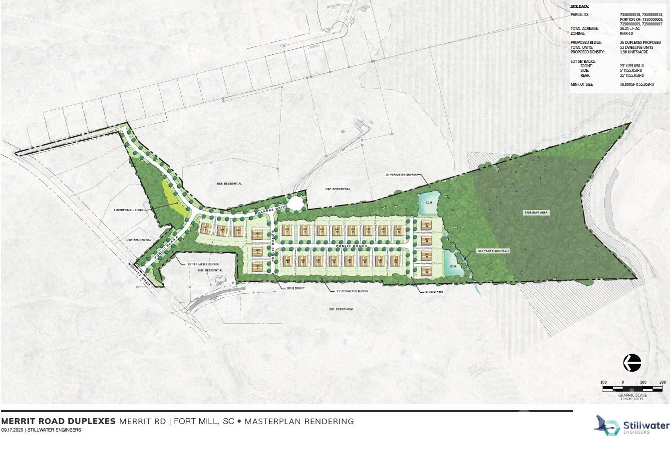
Prime 36-Acre Multifamily Development Opportunity – York County, SC (RMX-10 Zoning)- 54 SFR Home Sites An exceptional opportunity to acquire a high-value 36-acre property in rapidly growing York County, South Carolina located next to the Springfield Golf Course and Carolina Orchards. Strategically zoned RMX-10 (Residential Mixed Use), the site has the ability to develop, 54 SFR home sites on 10,000 sqft. lots, or 26 duplexes (52 units) for rent only, as confirmed by county staff, providing an ideal canvas for a high-demand residential community. This property offers excellent accessibility and is located with close proximity to top-rated public schools in both NC and SC and the abundant shopping, dining, and lifestyle amenities of Fort Mill—one of the region’s most desirable growth corridors. Significant due diligence has already been completed, reducing development risk and streamlining the entitlement process. Available reports and approvals include and can be shared with a qualified buyer: Environmental Phase I Report, Geotechnical Report, ALTA Surveys, Wetland Delineation Report, Utility Availability, Traffic Memo, Sketch Plan Review, Zoning Verification Letters, Willingness-to-Serve Letters, Site Plan Renderings With its favorable zoning, completed due diligence, and proximity to excellent schools and retail centers, this site represents a rare opportunity for developers and investors seeking to deliver much-needed housing in one of South Carolina’s most dynamic submarkets.
Location |
|
|---|---|
| Address | 000 Roanoke Drive Fort Mill |
| County | York |
Overview |
|
| Bedrooms | 0 |
| Full Bathrooms | 0 |
| Half Bathrooms | 0 |
| Lot Size | 36 acres |
| Year Built | 0 |
General |
|
| List Price | $3,800,000 |
| MLS Number | 4299175 |
| Status | Active |
| Office | SGR Realty |
Schools |
|
| Elementary | Fort Mill |
| Middle | Fort Mill |
| High | Nation Ford |
Features |
|
| Type | Acreage |
| Exterior Miscellaneous | Other - See Remarks |
| Water/Sewer | None |
Listings courtesy of Canopy MLS as distributed by MLS GRID

Based on information submitted to the MLS GRID as of 03/12/26 4:34 pm EST.
All data is obtained from various sources and may not have been verified by broker or MLS GRID. Supplied Open House Information is subject to change without notice. All information should be independently reviewed and verified for accuracy. School assignments should be verified and are subject to change. Properties may or may not be listed by the office/agent presenting the information. Properties reported may be listed or sold by various participants in the MLS. Copyright© 2020 Canopy Multiple Listing Services, Inc. All rights reserved.
The Digital Millennium Copyright Act of 1998, 17 U.S.C. § 512 (the "DMCA") provides recourse for copyright owners who believe that material appearing on the Internet infringes their rights under U.S. copyright law. If you believe in good faith that any content or material made available in connection with our website or services infringes your copyright, you (or your agent) may send us a notice requesting that the content or material be removed, or access to it blocked. Notices must be sent in writing by email to [email protected].
The DMCA requires that your notice of alleged copyright infringement include the following information:
(1) description of the copyrighted work that is the subject of claimed infringement;
(2) description of the alleged infringing content and information sufficient to permit us to locate the content;
(3) contact information for you, including your address, telephone number and email address;
(4) a statement by you that you have a good faith belief that the content in the manner complained of is not authorized by the copyright owner, or its agent, or by the operation of any law;
(5) a statement by you, signed under penalty of perjury, that the information in the notification is accurate and that you have the authority to enforce the copyrights that are claimed to be infringed; and
(6) a physical or electronic signature of the copyright owner or a person authorized to act on the copyright owner’s behalf. Failure to include all of the above information may result in the delay of the processing of your complaint.


