Property Details
733 Charles Avenue
Charlotte
$1,650,000
MLS Number: 4323082
Status: Active
Description
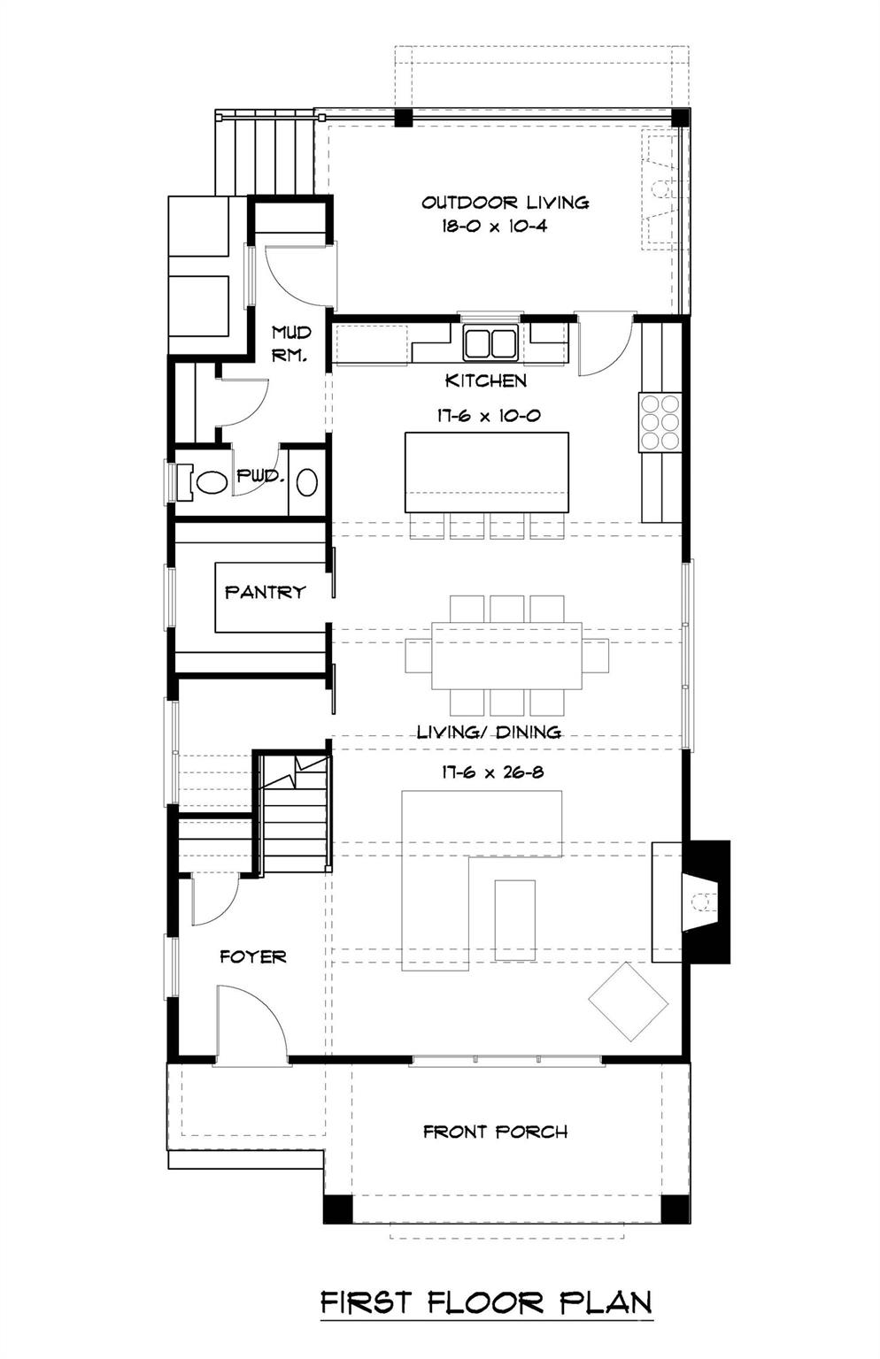
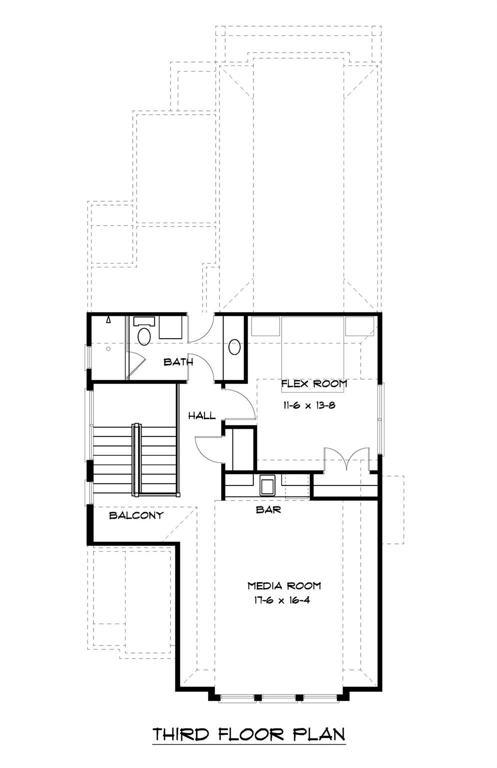
The Yadkin design is Grandfather Homes’ reimagined take on the classic NoDa bungalow, modernized with conveniences like 2-car detached garage and smart home technology. Thoughtfully designed in partnership with Elite Design Group, this residence features an open-concept main level anchored by a Thermador kitchen with oversized island that flows seamlessly into the dining area and living room with gas fireplace. The primary suite showcases a spa-inspired bathroom and generous walk-in closet. The third level expands your living possibilities with a spacious media room featuring a wet bar and an adjoining bedroom suite ideal for visitors or a private home office. Nestled within an intimate streetscape of nine custom homes in The Heirloom at Mattie Rose, this property blends luxury, sustainability, and effortless access to NoDa’s dining, nightlife, and creative culture. It’s true “art-itecture”—design elevated for everyday living.
Location |
|
|---|---|
| Address | 733 Charles Avenue Charlotte |
| Subdivision | The Arts District |
| County | Mecklenburg |
Overview |
|
| Bedrooms | 4 |
| Full Bathrooms | 3 |
| Half Bathrooms | 1 |
| Square Feet | 3039 sqft |
| Lot Size | 0.11 acres |
| Year Built | 2026 |
General |
|
| List Price | $1,650,000 |
| MLS Number | 4323082 |
| Status | Active |
| Office | Grandfather Homes Inc. |
Schools |
|
| Elementary | Villa Heights |
| Middle | Eastway |
| High | Garinger |
Features |
|
| Type | Single Family Residence |
| Style | Bungalow |
| Parking | Driveway, Detached Garage |
| Water/Sewer | City |
| Floor Coverings | Tile, Wood |
| Interior Miscellaneous | Kitchen Island, Open Floorplan, Walk-In Closet(s), Walk-In Pantry |
Listings courtesy of Canopy MLS as distributed by MLS GRID

Based on information submitted to the MLS GRID as of 03/24/26 4:34 am EST.
All data is obtained from various sources and may not have been verified by broker or MLS GRID. Supplied Open House Information is subject to change without notice. All information should be independently reviewed and verified for accuracy. School assignments should be verified and are subject to change. Properties may or may not be listed by the office/agent presenting the information. Properties reported may be listed or sold by various participants in the MLS. Copyright© 2020 Canopy Multiple Listing Services, Inc. All rights reserved.
The Digital Millennium Copyright Act of 1998, 17 U.S.C. § 512 (the "DMCA") provides recourse for copyright owners who believe that material appearing on the Internet infringes their rights under U.S. copyright law. If you believe in good faith that any content or material made available in connection with our website or services infringes your copyright, you (or your agent) may send us a notice requesting that the content or material be removed, or access to it blocked. Notices must be sent in writing by email to [email protected].
The DMCA requires that your notice of alleged copyright infringement include the following information:
(1) description of the copyrighted work that is the subject of claimed infringement;
(2) description of the alleged infringing content and information sufficient to permit us to locate the content;
(3) contact information for you, including your address, telephone number and email address;
(4) a statement by you that you have a good faith belief that the content in the manner complained of is not authorized by the copyright owner, or its agent, or by the operation of any law;
(5) a statement by you, signed under penalty of perjury, that the information in the notification is accurate and that you have the authority to enforce the copyrights that are claimed to be infringed; and
(6) a physical or electronic signature of the copyright owner or a person authorized to act on the copyright owner’s behalf. Failure to include all of the above information may result in the delay of the processing of your complaint.



