Property Details
3201 Donahue Drive
Nebo
$1,549,000
MLS Number: 4351255
Status: Active
Description
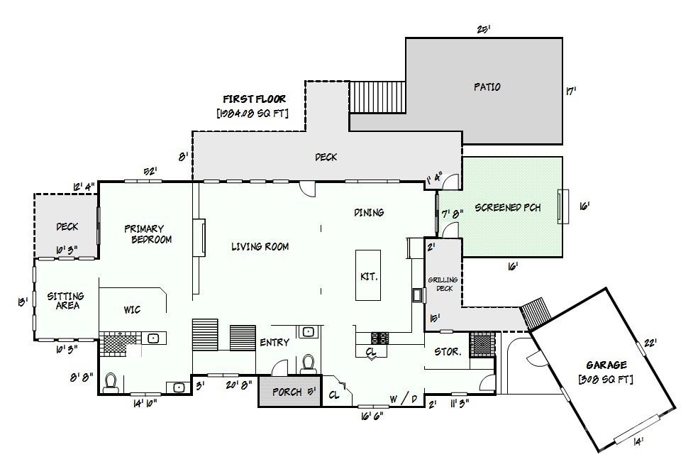
Timeless craftsmanship blended with gracious Lake James community living—that’s how we describe this home. The setting is wooded and private, near the 1780 Community pond and the trails of Hully Gully, which allow you to walk down to the lakeshore or Camp Lake James in minutes. This spacious home is functional for full-time living, but it’s also allowed to be a short term rental with significant income potential. It has a large kitchen with custom cabinetry, gas range, wine cooler, granite countertops and a large quartzite island. The downstairs living area has wide-planked hardwood floors and a stone fireplace with vented gas logs, custom bookcases and arts and crafts style details. The living area also leads to a custom screened porch with cathedral tongue and groove ceiling, wood fireplace and stone chimney. A charming reading nook under the staircase provides a peaceful escape, while also serving as a twin bed for a guest. The extra large primary bedroom suite has hardwood floors that flow into a private sunroom. It includes a private deck and a walk-in closet. The primary bathroom has tile floor, walk-in tile shower, water closet, independent sink vanities with granite tops and custom drawers for linens and towels. Upstairs, you’ll find two large bedrooms separated by a cozy media den and a jack and jill bathroom. Each bedroom has two built-in twin beds and is also roomy enough for a king-sized bed. Spacious floored attic space is accessible through the bedrooms on both sides of the house. The front door entryway has a slate floor and a powder room. The breezeway entry is through a long tiled mudroom, which includes laundry, pantry, hall closet and storage room/kennel with a dog access door. The stone breezeway has a tiled outdoor shower and leads to the garage. The back of the house has a yard surrounded by woods with a quiet lounging/exercise platform and a large patio with a hot tub. The house has a sealed crawl space, only one owner and has never been rented. It also comes with a boat slip on the Patton Docks. Ownership in 1780 includes membership to Camp Lake James and its amazing amenities and community events. Check out Camplakejames.com.
Location |
|
|---|---|
| Address | 3201 Donahue Drive Nebo |
| Subdivision | 1780 |
| County | Burke |
Overview |
|
| Bedrooms | 3 |
| Full Bathrooms | 2 |
| Half Bathrooms | 2 |
| Square Feet | 2939 sqft |
| Lot Size | 1.11 acres |
| Year Built | 2013 |
General |
|
| List Price | $1,549,000 |
| MLS Number | 4351255 |
| Status | Active |
| Office | Keller Williams Unified |
Schools |
|
| Elementary | Unspecified |
| Middle | Unspecified |
| High | Unspecified |
Features |
|
| Type | Single Family Residence |
| Parking | Driveway, Garage Door Opener, Garage Faces Front, Garage Shop |
| Exterior Miscellaneous | Above Ground Hot Tub / Spa, Hot Tub, Outdoor Shower |
| Water/Sewer | Well |
| Floor Coverings | Carpet, Slate, Tile, Wood |
| Interior Miscellaneous | Attic Walk In, Breakfast Bar, Built-in Features, Kitchen Island, Open Floorplan, Pantry, Storage, Walk-In Closet(s) |
Listings courtesy of Canopy MLS as distributed by MLS GRID

Based on information submitted to the MLS GRID as of 03/25/26 4:34 pm EST.
All data is obtained from various sources and may not have been verified by broker or MLS GRID. Supplied Open House Information is subject to change without notice. All information should be independently reviewed and verified for accuracy. School assignments should be verified and are subject to change. Properties may or may not be listed by the office/agent presenting the information. Properties reported may be listed or sold by various participants in the MLS. Copyright© 2020 Canopy Multiple Listing Services, Inc. All rights reserved.
The Digital Millennium Copyright Act of 1998, 17 U.S.C. § 512 (the "DMCA") provides recourse for copyright owners who believe that material appearing on the Internet infringes their rights under U.S. copyright law. If you believe in good faith that any content or material made available in connection with our website or services infringes your copyright, you (or your agent) may send us a notice requesting that the content or material be removed, or access to it blocked. Notices must be sent in writing by email to [email protected].
The DMCA requires that your notice of alleged copyright infringement include the following information:
(1) description of the copyrighted work that is the subject of claimed infringement;
(2) description of the alleged infringing content and information sufficient to permit us to locate the content;
(3) contact information for you, including your address, telephone number and email address;
(4) a statement by you that you have a good faith belief that the content in the manner complained of is not authorized by the copyright owner, or its agent, or by the operation of any law;
(5) a statement by you, signed under penalty of perjury, that the information in the notification is accurate and that you have the authority to enforce the copyrights that are claimed to be infringed; and
(6) a physical or electronic signature of the copyright owner or a person authorized to act on the copyright owner’s behalf. Failure to include all of the above information may result in the delay of the processing of your complaint.













































