Property Details
22 Honeysuckle Lane
Lake Wylie
$799,000
MLS Number: 4357913
Status: Active
Description
Tucked on a quiet cul-de-sac with a golf course backdrop, this River Hills home offers both privacy and space in one of the area's most sought-after gated communities. Inside, more than 3,200 square feet unfolds into multiple living areas, featuring a refreshed primary suite and a versatile lower level ideal for guests, multi-generational living, or a private retreat. Currently configured with 4 bedrooms plus a bonus room that can easily serve as a 5th bedroom, the layout blends character with functionality and adapts to your lifestyle — whether you're working from home, hosting visitors, or simply needing room to spread out. All of this is set within River Hills, known for its tree-lined streets, established charm, and access to golf, lake living, and outdoor amenities.
Location |
|
|---|---|
| Address | 22 Honeysuckle Lane Lake Wylie |
| Subdivision | River Hills |
| County | York |
Overview |
|
| Bedrooms | 4 |
| Full Bathrooms | 3 |
| Half Bathrooms | 0 |
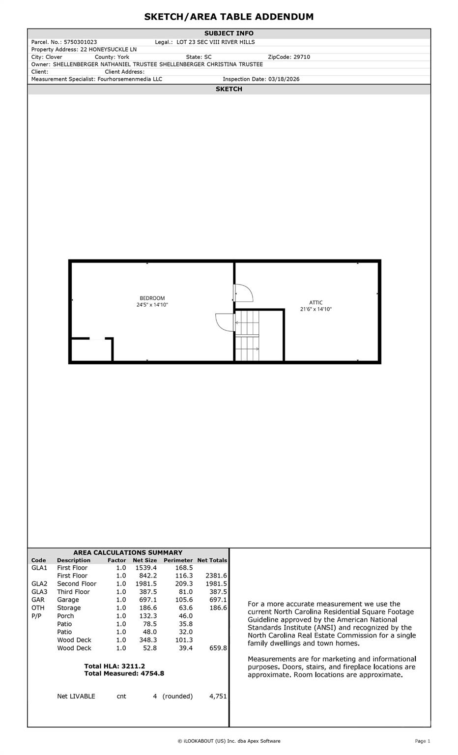
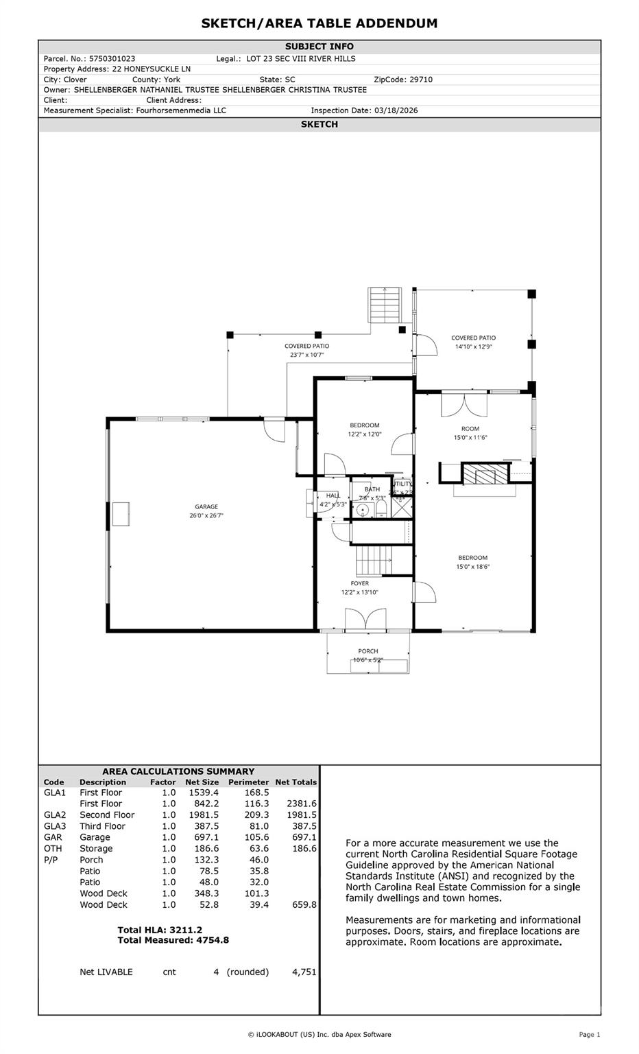
| Square Feet | 3212 sqft |
| Lot Size | 0.38 acres |
| Year Built | 1972 |
General |
|
| List Price | $799,000 |
| MLS Number | 4357913 |
| Status | Active |
| Office | Keller Williams Fort Mill |
Schools |
|
| Elementary | Crowders Creek |
| Middle | Oakridge |
| High | Clover |
Features |
|
| Type | Single Family Residence |
| Style | Contemporary |
| Parking | Driveway, Attached Garage |
| Exterior Miscellaneous | Hot Tub |
| Water/Sewer | County Water |
| Floor Coverings | Carpet, Vinyl |
Listings courtesy of Canopy MLS as distributed by MLS GRID

Based on information submitted to the MLS GRID as of 04/29/26 4:34 pm EST.
All data is obtained from various sources and may not have been verified by broker or MLS GRID. Supplied Open House Information is subject to change without notice. All information should be independently reviewed and verified for accuracy. School assignments should be verified and are subject to change. Properties may or may not be listed by the office/agent presenting the information. Properties reported may be listed or sold by various participants in the MLS. Copyright© 2020 Canopy Multiple Listing Services, Inc. All rights reserved.
The Digital Millennium Copyright Act of 1998, 17 U.S.C. § 512 (the "DMCA") provides recourse for copyright owners who believe that material appearing on the Internet infringes their rights under U.S. copyright law. If you believe in good faith that any content or material made available in connection with our website or services infringes your copyright, you (or your agent) may send us a notice requesting that the content or material be removed, or access to it blocked. Notices must be sent in writing by email to [email protected].
The DMCA requires that your notice of alleged copyright infringement include the following information:
(1) description of the copyrighted work that is the subject of claimed infringement;
(2) description of the alleged infringing content and information sufficient to permit us to locate the content;
(3) contact information for you, including your address, telephone number and email address;
(4) a statement by you that you have a good faith belief that the content in the manner complained of is not authorized by the copyright owner, or its agent, or by the operation of any law;
(5) a statement by you, signed under penalty of perjury, that the information in the notification is accurate and that you have the authority to enforce the copyrights that are claimed to be infringed; and
(6) a physical or electronic signature of the copyright owner or a person authorized to act on the copyright owner’s behalf. Failure to include all of the above information may result in the delay of the processing of your complaint.













































